Exhibitions
Since the catastrophic floods of 2022 Lismore has been without a museum. The collection and archives are currently safely housed at the Goonellabah Community Centre. It will be some time before we will be able to have a museum display.
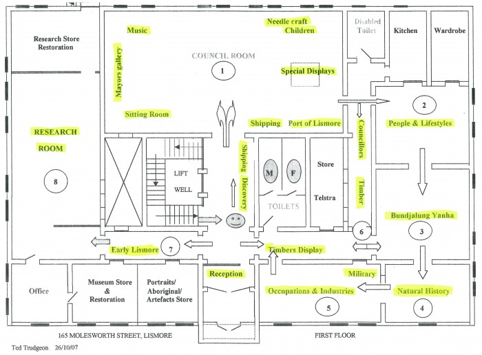
The museum was previously housed on the upper floor of the heritage-listed former Lismore Municipal Building, with permanent displays mounted in seven gallery spaces. The plan below details the layout of the Museum and Research Centre.

The main display area was in the old Council Chamber (1), which is lined with cedar taken from the homestead of the Kyogle pastoral run. Major exhibitions were mounted here. It retained some Council furnishings and portraits of Lismore mayors since 1876, had displays of musical instruments, the history of shipping to the region, and trophies gained in a number of competitive fields, local education and handcrafts. One highlight iwas the medicine chest from the SS St George, which included two interpretive panels and free brochures detailing the history of the chest and a detailed analysis of the contents. These contents gave a very comprehensive picture of the state of medical practice on board seagoing vessels at the end of the nineteenth century.

The Louise Tiffany Daley room (2) (formerly Pioneers Room) concerns the lives of early settlers, with portraits of significant individuals and families, their clothing, household treasures and implements.

The Bundjalung Janha (Bundjalung Way) (3) display dealt with the history of the Bundjalung people whose traditional country this is. It covers such areas as Caring for Country; Ceremonies and Gatherings; Old Ways, New Ways; and Quiet Achievers. It contained a display of Aboriginal implements, relating past history and culture to Aboriginal aspirations and lifestyles in the present. Bundjalung tribal elders approved items that were displayed and culturally sensitive items are stored in accordance with negotiated protocols.

The Natural History room (4) features regional ornithology, geology and zoology.

The Industrial & Military space (5) contained items relating to local military history, photographic equipment, including cameras used by local photographers, tools used by local craftsmen and early timber getters, and early domestic utensils. A highlight of this room was the exhibition As Good As Any Man, based around an original NSW Lancers uniform of the 1890s which belonged to Otto Armbruster. It marks the significant role of the Lancers in local history and also the contribution of such families in the development of the region.

The foyer and passageways (6) contained an interpreted display of 119 species of local rainforest timbers and a display on the role of the river in transport for over 100 years. The entrance leading to the Research Centre (7) contains a series of framed photographs of early Lismore.

As well as permanent exhibitions, topical displays were mounted, featuring local themes and events. These were publicised on our Facebook page, as well as in our Bulletin and in the media.
